
设计部落:shejibuluo
| 习字、阅读、空中瑜伽…… |
| 船长女儿的复古风一人居,太惬意! |
用温暖的设计改变家。
——阿加

福建姑娘陈怡,从小在海边长大,
如果你曾看过第三季《梦想改造家》,
一定会记得那个案例——临海的船长之家,
如雪莲般绽放在悬崖边上的房子,
是的,那就是陈怡的老家。
今天的故事发生在她的新房子里。
新房位于福州市,是一套普通的三居室公寓,
嵌在钢筋水泥的包裹之中,
窗外不再是蔚蓝的海,而是逼仄的楼房。
陈怡本不奢望新房与老家能产生联系,
可温暖的缘分竟然不期而遇,住进新家越久,
陈怡就越来越能感到二者之间的呼应。
因为陈怡碰到了一个懂她的设计师-阿加。
两个人一见投缘,聊了很久。
阿加受邀前去参观了陈怡的老家,
那种建筑与船长精神之间的契合,
深深地打动了阿加,也让她瞬间明白了,
新家与老家之间,应该如何联结、如何传承。

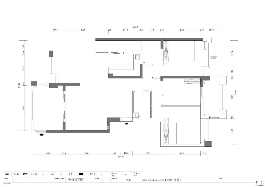
初始平面图
新家是130㎡的高层套房,进深长达17m,
仅在南北两头有窗,中间近10m没有窗户,
客餐厅、走廊都形成了暗室。
此外,房子中心区域有个卫生间,
使房内形成一个长长的L型过道,
不仅阻碍动线,更将房子一分为二,
几乎将南北两侧区域完全隔绝。
对此陈怡深有体会——因为迟迟未装修,
她得以参观了很多同户型邻居的房子,
卫生间的这个bug使每户人家都有种隔绝感,
走廊很长,却只能沦为走路的通道。


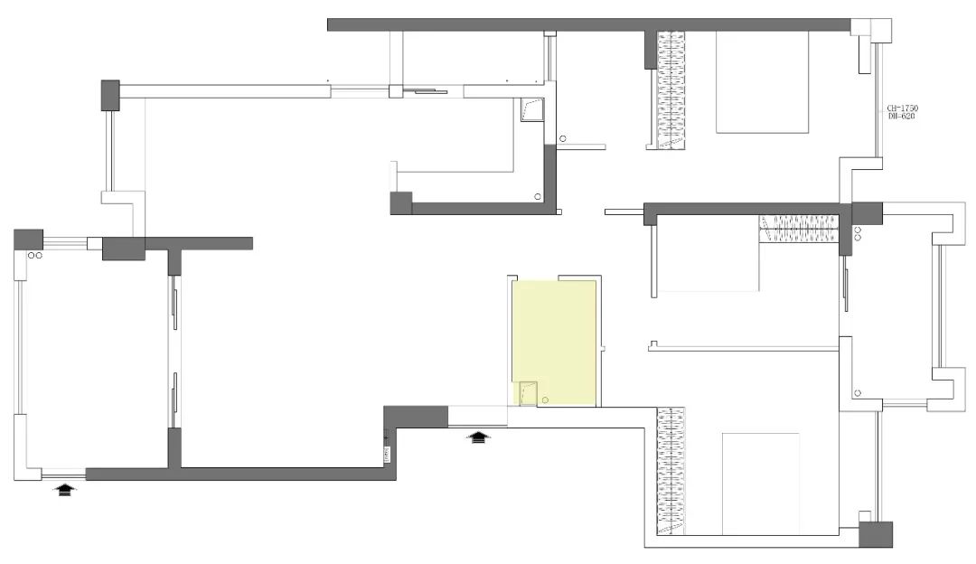
滑动查看改造示意图
对于这两个户型大bug,
阿加给出了巧妙的化解方案:
1、将卫生间调个头(长和宽互换),增加通道宽度;
2、北侧阳台打通包进客厅,最大化利用北侧自然光,再利用临窗的采光优势,做成开放式书房;
3、南侧中间的客房面向走廊的墙敲掉,改成推拉门,平时房门敞开,使南侧自然光自由进入。

改造后户型图
这种方式,乍一看是浪费了面积做通道,
却一次性解决了采光差、不通风、
动线受阻、通道过长等所有问题。
要知道,采光、通风和动线是最重要的因素,
是决定一个家住得舒适、方便的基础。
打开了光与风的通道,就盘活了整个家。

配色设计
也许是老家大量使用了樱桃木的缘故,
使年纪尚轻的陈怡对深木色情有独钟。
红褐色(俗称“猪肝色”)是年轻人的大敌,
因为它一不小心就会显得老气横秋。
此外,陈怡直爽的性格很适合休闲的暖色调,
阿加想来想去,去现场多次调色比对后,
最终选用了浅杏仁色作为墙面基色。
这种沉静百搭的颜色能中和红褐色的老龄感,
二者色系相近,过渡也更为和谐。
此外,在局部融入金色、橙色点缀,
再搭配清新的米白、绿色来提亮,
营造出复古、沉静又不失精致的氛围。
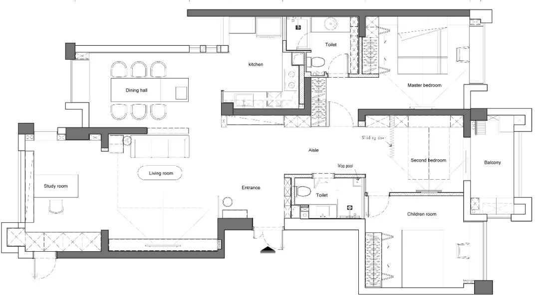
玄关

原户型中并没有玄关的位置,
阿加在进门左手边添了鞋柜+墩子,
实现了玄关的收纳、放置需求。
鞋柜上方设置圆镜和台灯,
进门时拉动链条就有暖色灯光亮起,
仿佛小小的灯塔,是一种迎接仪式。

鞋柜旁是长虹玻璃隔断,轻盈通透,
既是对玄关区域的进一步划分,
又能缓和看往客厅的视线,
还不会阻挡北侧的自然光,一举多得。
客厅
生长于海边,有着海一般的性格,
直爽的陈怡待人接物都喜欢“打开”的状态,
因此公共区域的布局也顺势而为,
客餐厅、书房、厨房全部做成开放式,
仅用自然的光影和墙柱的存在,
让空间自然地形成区域划分。

电视墙用石膏线条做了造型处理,
选择了色彩活泼的画作,
不对称式的摆放为空间增加了趣味。
为了符合客厅整体调性,电视柜量身打造,
格栅亦中亦西,配上金色拉手,
在细节中体现品质。

因为要消化老家剩余的竹钢地板和脚线,
不能选择花色更适合的地板,
特意淘了一块浅灰底色地毯铺地。
灰色条纹提亮,焦糖色几何块呼应家具,
从颜色上形成错落的层次。

利用沙发旁不能敲掉的墙柱,
内嵌一个小书架,分担客厅和书房收纳。
书房

从出门即是海的老家转移到水泥森林,
说一点不遗憾那是假的。
阿加开动大脑,利用现有条件,
将建筑外墙原有的方形窗洞改作弧形,
虽然遮挡了一点窗户,但因为是北面,
对光线和风的影响其实很小,
得到的好处却很大。
拱的造型不自主地吸引了人的目光,
加上薄纱的遮挡,弱化了窗外高楼的逼仄。

铺上书卷气满满定制明式书桌,
深沉的木色让人内心笃定,
窗台随意摆几件装饰品就艺术感十足。
闲暇时刻,临窗阅读、习字,
感受风从时光深处习习拂过,
这儿成了陈怡最爱的角落。

临窗也打造了收纳柜,
随手拿取书本非常方便,
旁边还有一整面的顶天立地柜,
分担收纳压力,随时保持整洁清爽。

黄昏时刻,夕阳光将墙壁打成淡粉色,
整个空间散发着无比温柔的气息。
餐厅

虽然新房主要是陈怡自己住,
但家人会时常过来一起聊天吃饭。
开放式餐厅位于客厅后方,
全家都很喜欢边吃饭边看电视聊天。
这也是LKD式布局如此受欢迎的原因:
家在很多时候往往就是一种氛围,
尤其在无比重视亲情和饮食的中国,
不设置任何阻隔的客餐厅,
既扩大了空间视觉感,也便于家人互动,
一家人围合在一起吃饭,
让家更有其乐融融的味道。

餐厅背景墙选用英国cole&son壁纸,
浅灰色几何图样与乳白色吊灯相互映衬,
增添了一抹闲适的复古韵味。

餐桌旁的小型吧台带有上水系统,
方便洗水果、茶杯,还能边洗菜边看电视,
不用再走到更远的厨房,方便又有趣。

吧台下方带有储物功能,
拉篮是阿加强烈推荐的,非常实用,
杂物、零食、杯碗等可以统统收入。
厨房

带天然纹理的红褐色门板配金色拉手,
墙上亮面条砖闪着釉面的光泽,
是高颜值的美式复古风厨房没错了。
走廊

宽敞的过道没有做过多装饰,
连接了南北的窗口,
使光与风可以更自由地来去。
客房

幽长的过道带有一种沉静感,
恍惚中感觉回到了老家。
过道尽头是“空无一物”的客房。
陈怡自觉不是个勤快的人,甚至算是懒惰。
断舍离离她很远,她不打算改变本性,
又担心乱糟糟的家会摧毁心情和斗志。
如何在劣根性和对整洁的要求中找到平衡点?
阿加的锦囊是:使一个房间空无一物。

客房里藏着折叠门、吊环和壁床等“机关”,
壁床里还暗含床头柜,
父母偶尔来福州小住时,
放下壁床,拉上隐形门,
就能迅速变身为一个温馨的卧室。
所有的毫不费力都是拼尽全力,
所有的空无一物其实暗藏玄机。
好的设计不是看起来多么华丽繁复,
而是用简单的方式满足生活的多样性。


陈怡很喜欢练习空中瑜伽,
在吊顶预埋吊环挂上瑜伽带就可以。
承重400斤,各种高难度动作大胆走起,
还能和弟弟来个pk~

心情烦躁时,就来这儿静坐,
或是荡个秋千,清空心中的杂念。
第一次坐在上面飞起来的时候,
陈怡感受到了儿时的快乐,感动莫名。
长大很难,能保留一块童年的痕迹,
是一件无比幸运的事。
主卧

陈怡的卧室刷成了墨绿色,
不是因为追随复古潮流,
纯粹是源自内心对深绿色的喜爱。
陈怡说,搬家那阵子累到快要崩溃,
她躺在卧室床上,拉起窗帘,
森林般的绿意一层层包裹着她,
仿佛在幽暗的角落疗伤,拥有治愈之力。

墨绿墙配野兽派的豆绿色丝绒床,
同色系的深浅差异使空间层次更丰富。
墙壁上的画作来自厦门的旅行插画师,
是阿加去厦门的时候意外偶然获得,
画面带有一丝微甜的粉色调,
营造独属于女孩儿的惬意小世界。
临窗打造了书桌,可以作为安静的阅读角,
又有充足的光线可以用做梳妆台。
桌子旁边的立式格子提供了收纳空间。
次卧

次卧是给家人偶尔来小住用的,
贴了童趣满满的小狐狸壁纸,
不管是给弟弟还是给父母住,
都有种调皮的反差萌,引人莞尔。

室内设计师其实是生活的圆梦师,
要在每个家庭有限的空间、有限的时间、
有限的预算和有限的精力内,
完成所有人对家、对生活的无限想象,
从过去到现在再到未来,
从每个人最细微的习惯到各自不同的审美。
过程中一重重的难关闯过去,
当一切完成,站入新家的一瞬间,
心情会不由自主地愉快起来,
此刻你会发现,好的家是对自我的表达。
看到它仿佛看到了自己,
它表达了你的性格、喜好,
融合了对过往生活的怀念,
对未来的想象,甚至潜意识的需要,
最终形成了现在的样子。

就像船长女儿陈怡,坐在沙发上眯眼,
感受到夏天的风丝丝拂过脸庞,
温热中带着慵懒的气息。
刹那间,她仿佛回到了小时候,
在家门口和邻居们吹着海风纳凉聊天。
这才是城市高楼里的奢侈品。
房屋信息
项目地址:福建 福州
使用面积:130㎡
项目花费:50w
设计机构:阿加空间设计
设计收费:400-500元/平米

——
设计部落
业主和设计师的家园
商务合作请联系部落君
▼